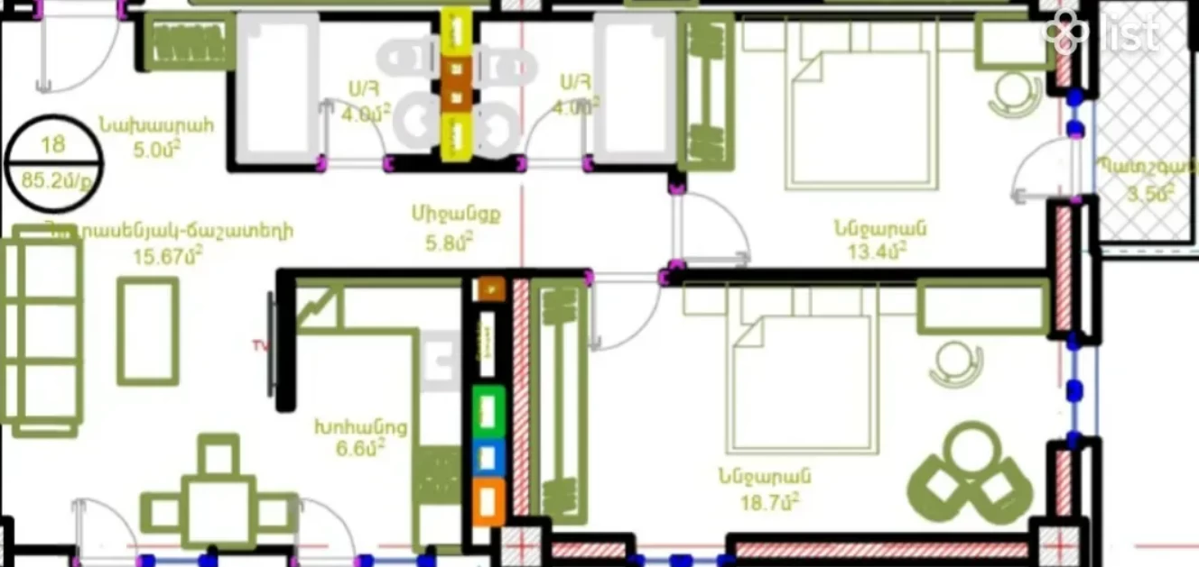
Վաճառվում է Բնակարան 78մ² Մալաթիա-Սեբաստիաում

43 960 000 ֏
Տեղադրման ամսաթիվ :   19 Դեկտեմբեր 2025

Մանրամասներ

Գինը ..........................................................................................................
43 960 000 ֏
Մակերես ..........................................................................................................

78 մ2

Սենյակների թիվը ..........................................................................................................

3

Հարկ ..........................................................................................................

5

Հարկերի թիվը ..........................................................................................................

8

Վերանորոգումը ..........................................................................................................

Չվերանորոգված

Պատշգամբ ..........................................................................................................

Բաց պատշգամբ

Կենցաղային տեխնիկա ..........................................................................................................

Ներառնված չէ

Շինության տիպը ..........................................................................................................

Մոնոլիտ

Վիճակը ..........................................................................................................

Ավարտված կառույց

Նորակառույց է ..........................................................................................................

Այո

Վերելակ ..........................................................................................................

Նոր վերելակ

Վաճառողի կարգավիճակը ..........................................................................................................

Սեփականատեր

Կոդ ..........................................................................................................

00005245

Նկարագրություն

Վաճառվում է բնակարան նորակառույց շենքում։ Բնակարանը ավարտական փուլում է միքանի ամսից կհանձնվի բնակիչներին։ Բնակարանը ունի գեղեցիկ տեսարան դեպի Սբ. Երրորդություն եկեղեցի և հարակից այգի։

Օգտատիրոջ տվյալներ

(093) 47-47-07
(095) 04-40-04

Նմանատիպ հայտարարություններ

Սենյակների թիվը ..........................................................................................................
1   
Հարկ ..........................................................................................................
1   
Կոդ ..........................................................................................................
00003884
Ամսաթիվ ..........................................................................................................
22-11-2025
Վաճառվում է Բնակարան 73մ² Քանաքեռ-Զեյթունում

Երևան, Քանաքեռ-Զեյթուն

120 000 $
Սենյակների թիվը ..........................................................................................................
3   
Հարկ ..........................................................................................................
5   
Կոդ ..........................................................................................................
00003269
Ամսաթիվ ..........................................................................................................
15-11-2025
Վաճառվում է Բնակարան 51մ² Քանաքեռ-Զեյթունում

Երևան, Քանաքեռ-Զեյթուն

200 000 $
Սենյակների թիվը ..........................................................................................................
2   
Հարկ ..........................................................................................................
2   
Կոդ ..........................................................................................................
00003199
Ամսաթիվ ..........................................................................................................
14-11-2025
Վաճառվում է Բնակարան 60մ² Կապանում

Սյունիք, Կապան

24 000 000 ֏
Սենյակների թիվը ..........................................................................................................
2   
Հարկ ..........................................................................................................
1   
Կոդ ..........................................................................................................
00007432
Ամսաթիվ ..........................................................................................................
30-01-2026
Սենյակների թիվը ..........................................................................................................
3   
Հարկ ..........................................................................................................
2   
Կոդ ..........................................................................................................
00003364
Ամսաթիվ ..........................................................................................................
17-11-2025
Սենյակների թիվը ..........................................................................................................
2   
Հարկ ..........................................................................................................
5   
Կոդ ..........................................................................................................
00007789
Ամսաթիվ ..........................................................................................................
04-02-2026